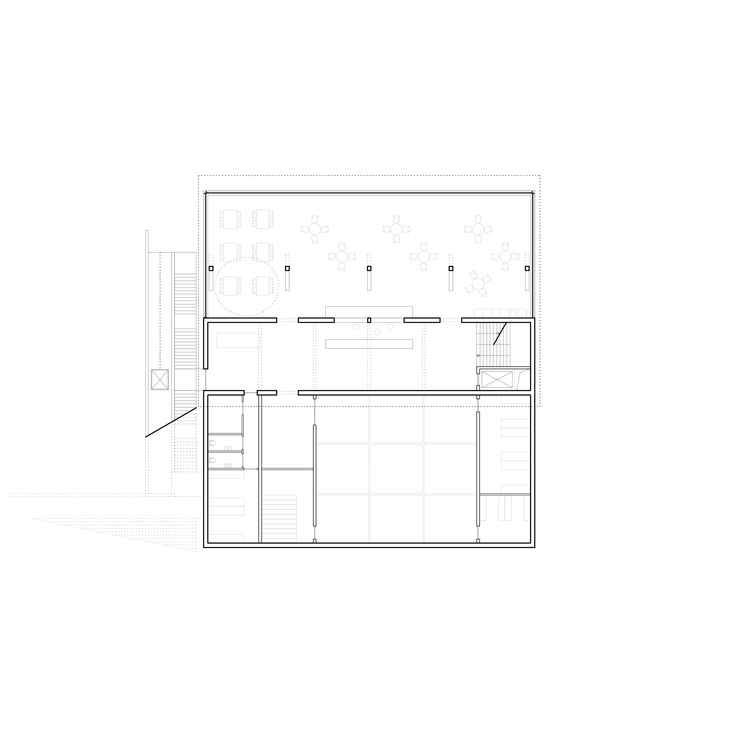
2402 / visiting centre
A visiting centre in the fjords of Norway.
- Location
- Vassenden, Norway
- Type
- Culture
- Status
- Competition
- Surface
- 585m²
- Client
- Sunnfjord Municipality
in collaboration with Neven M Fuchs
A visiting centre in the fjords of Norway.
in collaboration with Neven M Fuchs